I was the Technical Specialist in a 3 person startup team whose goal was to build HIV/AIDS clinics in extremely remote mountain sites in Lesotho. Some sites had seasonal road access while some were accessible only by single engine Cessnas. All sites had water and some existing buildings, but no power and no communications other than shortwave radio.
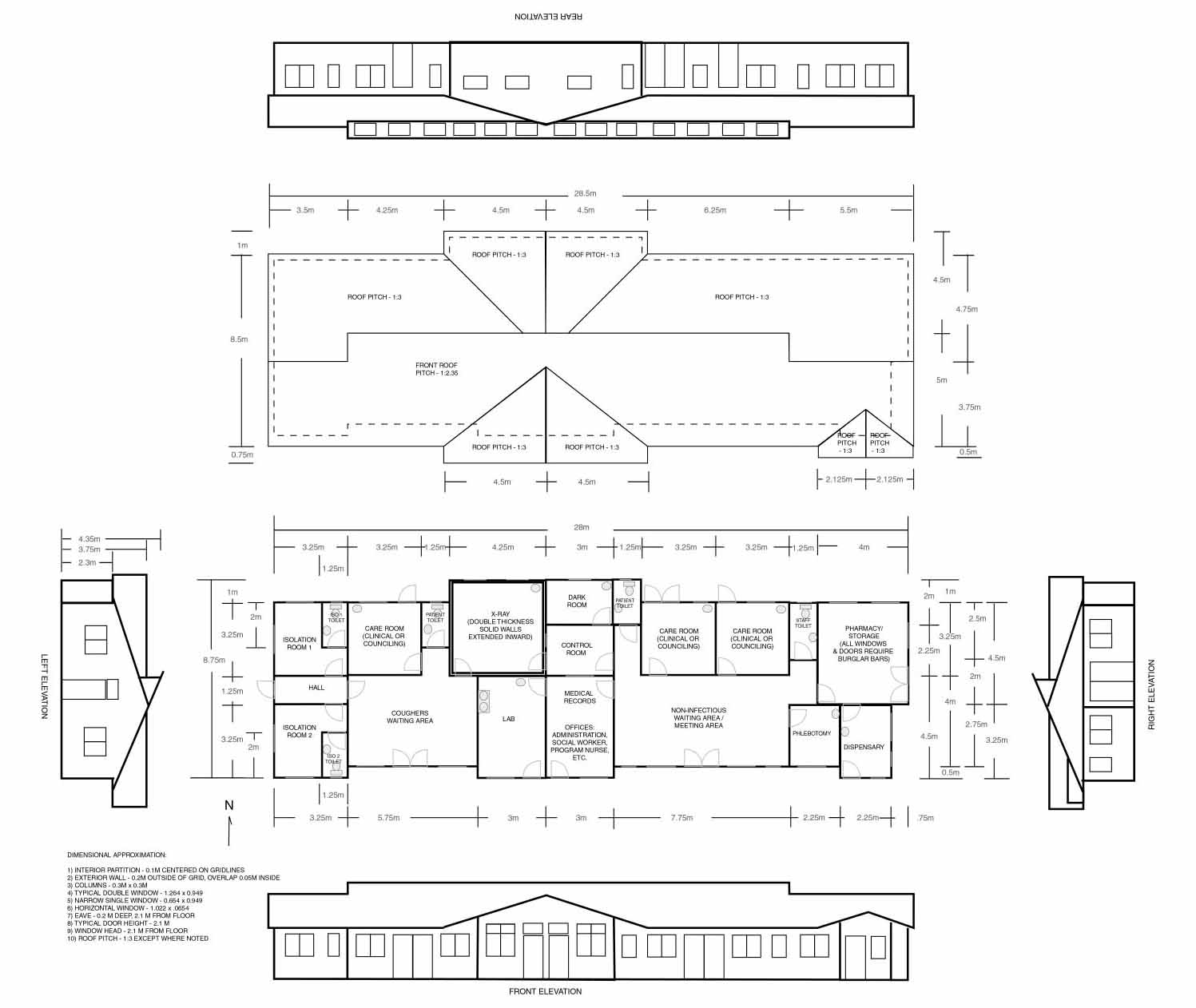
Originally hired to implement an open source medical records system, I quickly switched focus to rapid infrastructure building. I performed architectural design, drafted detailed blueprints and specifications, contracted and supervised the construction of clinic buildings with a focus on good patient flow and TB infection control. I performed tradeoff analyses, specified, procured and supervised installation of various equipment including solar power system and VSAT communications system
I developed relationships and worked in close partnership with various Lesotho Government Ministries, other NGOs and local vendors. While hiring and training staff, I supervised clinic development at four rural sites simultaneously. Once basic infrastructure was in place, I worked to adapt an open source web based electronic medical records (EMR) system for the multiple health programs - debugged/redesigned the EMR templates for usability, set up IT systems, hired, trained and managed data collection staff
In just over one year, we built 4 separate clinics which together serve a catchment area of approximately 80,000 people. We grew to 50+ staff, had >1,000 patients started on anti-retroviral treatment.